Code at a Glance
Get the information you need quickly with our International Code Quick Reference Chart.
Download Quick ChartProducts must be certified and labeled to show they conform to their established ASTM standard:
Vinyl Siding
ASTM D3679—R703.11
Insulated Vinyl Siding
ASTM D7793—R703.13
Polypropylene Siding
ASTM D7254—R703.14
Backed Vinyl Siding
ASTM D7445 — CODE COMPLIANCE REPORTS
CLADDING — IRC R703 Provides prescriptive and performance installation requirements:
In general, horizontal vinyl, backed vinyl siding and insulated vinyl siding are installed 16" on center using roofing (siding nails) nails. Variations are allowable including other approved fasteners like staples and screws and 24" on center when approved by the manufacturer's instructions. Vertical siding is installed 12" on center or as approved by the manufacturer instructions.
Polypropylene siding panels range in size and are unique. Manufacturer's instructions should be reviewed and in many cases fastener spacing may be less than 10" on center. It must be installed over some type of wood sheathing.

R703.3.1 Siding clearance at wall and adjacent surfaces:
Unless otherwise specified by the cladding manufacturer or this code, polypropylene, insulated vinyl and vinyl claddings shall have clearance of not less than 6" from the ground and not less than 1/2" from other adjacent surfaces (decks, roofs, slabs).

Starter strip
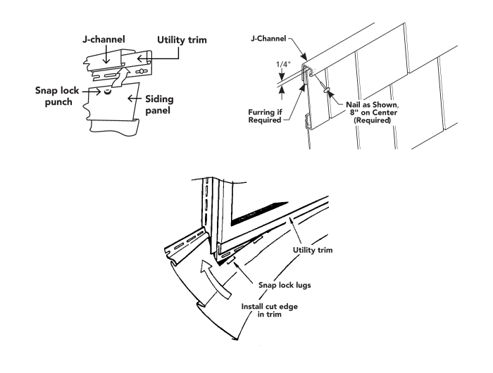
According to R703.11.1.1 and R703.14.1.1.1, the first course of siding (vinyl siding, insulated vinyl siding and backed vinyl siding and polypropylene siding) must be secured to the wall using a starter strip. If the first courses' bottom edge is trims, it shall be secured using a utility trim and snap locks.

Utility trim and snap locks (or nail slot punches)
According to section R703.11.1.2 and R703.14.1.1.2, utility trim shall be used where the top edge of the panel is removed like below windows or at the top of walls (with vinyl siding, insulated vinyl siding and backed siding). In the case of polypropylene siding, when the top edge of the panel is removed, a nail slot or hole should be used with a fastener.

SOFFIT — IRC Section R704 provides specific requirements for the installation of vinyl soffit panels:

Fascia
Fascia is required to be installed with one finish nail through the return leg and into framing every 24” on center, and the fascia material should be covered by the roof drip edge at least 1” or face nailed no more than 1” below the drip edge 24” on center. Note: In high wind areas, the fastener spacing is 16” on center, and the face nail is required, or a utility trim and snap locks spaced 6” must be used or pre-drilled face nailing can be used at 16" on center.

In general, vinyl siding, polypropylene siding and insulated vinyl siding are not limited in their application with homes built under the IRC.
In two instances, performance measures related to high-density construction and fire will apply:
IRC R302 General
IRC Table R302.1 (1) place requirements of a 1-hour tested assembly, according to ASTM E119 on exterior walls that are 5' or closer to the property line
IRC R703.14.2 limits the use of polypropylene siding on walls that are closer than 5' to the property line (separation distance) and on walls 10' or closer to walls of other buildings on another lot unless a test report showing compliance to ASTM E84 certification of flame spread index is provided in accordance with R703.14.3. Note, this provision does not apply to walls that are perpendicular to the line used to determine the separation distance (example: front and rear elevations of townhouse construction).
Get the information you need quickly with our International Code Quick Reference Chart.
Download Quick Chart